
閘閥知識
閥門首頁 > 閥門知識 > 閘閥知識 > Z941H電動閘閥是一種廣泛應用于多個領域的閥門設備,主要適用于石油、化工、水利、建筑、消防、電力、環保等場合。其產品特點和技術...
Z941電動閘閥是一種廣泛應用于石油、化工、制藥和電力等行業的閥門,主要用于蒸氣、水、油品等介質的管路上進行啟閉操作。以下是關于...
手動刀閘閥門改電動閥產品介紹主要包括以下幾個方面: 定義和功能 手動刀閘閥門改電動閥是通過將手動刀閘閥門的操作機構替換為電動...
污水專用電動刀型閘閥是一種專門設計用于污水處理系統的閥門,具有多種特性和應用場景。以下是關于污水專用電動刀型閘閥的詳細介紹...
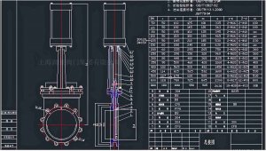
大口徑電動刀閘閥是一種通過電動裝置驅動的閥門,主要用于遠程控制閥門的開啟和關閉。其結構包括左、右閥體、密封面、閘板、鋼螺母...
電動刀閘閥,也稱為電動刀型閘閥,是一種重要的流體控制設備。其結構相對簡單,主要包括閥體、閘板、閥桿、密封件和執行機構(電動...
電動刀閘閥的工作原理基于電動執行器的驅動。當電機接收到控制信號時,它會驅動閥桿進行上下運動,進而帶動閘板在閥體內進行升降。...
電動閘閥PZ973H是一種高性能的工業控制閥門,結合了電動裝置與刀型閘閥的優點,具備結構緊湊、設計合理、密封可靠、操作輕便靈活等特...
上海湖泉閥門集團有限公司手動鑄鋼閘閥改為電動閥門,是一項重要的工程改造,將傳統的手動操作方式升級為自動化控制,提高了設備的...
電動陶瓷排渣閘閥是一種通過電力驅動來實現閥門啟閉的設備,其關鍵部件采用陶瓷材料制成,以提高耐腐蝕、耐沖刷和耐高溫等性能。電...